Zum Inhalt springen

Living Point 21

Wien
Floridsdorf
Hutterplatz, 6

€461.000

€5.507 pro m²
  • Tiefgarage
  • Infrastruktur
  • Bild 1 von 1

Grundlegende Informationen

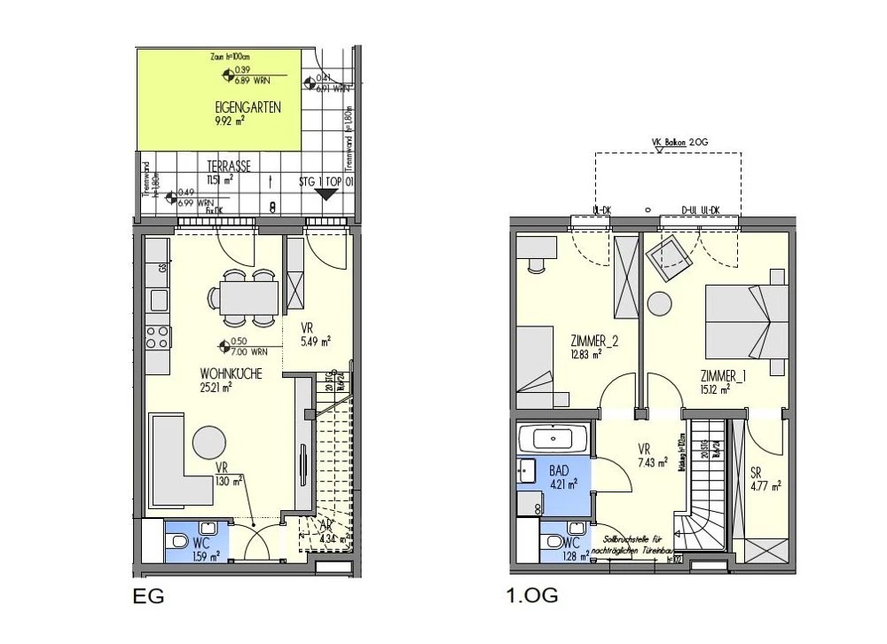
3 Zimmer

Wohnfläche 83.71 m²

Erdgeschoss

Abschnitt 1

Terrasse 11.51 m²

Garten 9.92 m²


Lage von Living Point 21

Wir laden Sie herzlich zu einer Besichtigung ein, bei der Sie die Möglichkeit haben, eine der modernen und hochwertigen Wohnungen unseres Projektes zu besichtigen.

Um einen Besichtigungstermin zu vereinbaren, senden Sie uns bitte Ihre Anfrage über unser Formular.

Living Point 21 am Hutterplatz 6 in 1210 Wien bietet den zukünftigen Bewohnerinnen und Bewohnern attraktive Allgemeinflächen zur exklusiven Nutzung. Der hauseigene Gemeinschaftsraum inklusive Küche eignet sich bestens für gemeinsame Feste und der Fitnessraum lädt zum Auspowern ein. Dieses Mischek Neubauprojekt bietet eine Reihe außergewöhnlicher Vorteile:

144 frei finanzierte Eigentumswohnungen
1 bis 4 Zimmer-Wohnungen
Alle Wohnungen mit Garten, Balkon, Loggia oder Terrasse
AKTIV+ heizt im Winter und konditioniert im Sommer mittels Betonkernaktivierung
Gemeinschaftsraum inkl. Küche
Fitnessraum
Waschküche
Ankaufbare Einlagerungsräume
Kinderwagen- und Fahrradabstellräume
Hauseigene Tiefgarage mit 95 Stellplätzen

download.png

Bauträger

Mischek Bauträger Service GmbH

N/A

Öffnungszeiten:

  • Mon.-Thur.
  • Frid.

3 Abgeschlossene Projekte

1 Projekte im Bau


Mehr über Mischek Bauträger Service GmbH

Top-Projekte

Alle anzeigen